Cette équipe en a tiré les plans qui suivent, ainsi que la monographie que vous pourrez consulter plus bas.


![]() |
La
montagne de Puech Crémat, située dans la commune de Nasbinals
(Lozère), un des éléments de la montagne historique
de Montorzier, était jusqu'à la Révolution propriété
de la dômerie d'Aubrac.
La montagne de Montorzier d'une surface de 420 ha avait, en 1789, été
estimée 40480 livres et vendue comme bien national le 13 juin 1791
pour 59500 livres à Richard, commissaire terrier à Marvejols.
Elle fut ensuite revendue à Reversat de Saint-Laurent-d'Olt.
Elle figure sur le premier cadastre de Nasbinals comme étant la propriété de M. Baduel d'Oustrac résidant à Laguiole (Aveyron). Montorzier avait été partagée et la montagne de Puech Crémat cotée sur la matrice cadastrale pour une contenance de 216 ha.
En 1885, un des descendants de Baduel d'Oustrac vendit Puech Crémat à Casimir Mayran, résidant au Château de la Baume, commune de Prinsuéjols (Lozère).
Puech Crémat fut partagé en 1924 en deux parcelles, Puech Crémat Haut et Puech Crémat Bas. Joseph Ayrignac acquit cette dernière d'une surface de 74 ha. Joseph Ayrignac était à Paris le fondateur et l'animateur de la Solidarité Aveyronnaise, une des nombreuses Amicales regroupant les Rouergats de Paris.
Actuellement, la montagne de Puech Crémat Bas appartient à
François et Jean-Louis Ayrignac, fils de Joseph Ayrignac.
Le premier réside à Paris, le second à Saint-Geniez-d'Olt.
La ligne électrique qui alimente la ferme de Montorzier passe à proximité du buron. Un branchement a pu être effectué; c'est la raison pour laquelle le buron du Puech Crémat est le premier et le seul de tout l'Aubrac à posséder l'électricité.
La clôture de la montagne commencée en 1960 a été terminée en 1961. En 1963, la montagne a été divisée par des clôtures internes en trois parcelles de surface à peu près égale.
Deux analyses floristiques ont été effectuées sur la montagne. La parcelle 1 est la plus riche. Elle inclut la zone où se trouve le buron; les parcelles 2 et 3 sont moins riches; une grande partie de leur surface est marécageuse (avec carex vulgaris et joncus effusus en grande quantité), ou rocheuse (partie Sud de la montagne). Partout le Nard raide, Nardus Stricta est abondant.
Les ruisseaux servent d'abreuvoir aux animaux. Une fontaine a
été aménagée à proximité du buron,
alimentée par une rigole creusée par l'équipe des
buronniers durant l'été 1964. Une source située
à 100 mètres en contrebas fournit l'eau potable.
Puech Crémat Bas est constitué par l'assemblage de 7
parcelles de pâture et une parcelle de sol de bâtiment (emplacement
du buron).
Il quitte Paris à la fin du mois d'avril et rejoint son buron
du Puech Crémat où il reste jusqu'au 14 ou 15 octobre.
Au début du mois de mai, Emile se rend sur la montagne, s'occupe
de l'entretien du bâtiment, prépare l'estive et recrute les
membres de son équipe. Le 25 mai, les animaux arrivent sur
la montagne. Commence alors pour l'équipe des trois buronniers
une nouvelle campagne de production de fromage. Emile Chassaly va
contrôler et gérer la production en véritable comptable
qu'il est. Ce sont ses qualités d'organisateur qui nous ont
permis de faire cette monographie de Puech Crémat Bas. Emile
Chassaly s'est comporté comme un véritable chercheur et l'associant
à ce travail, nous tenons à lui témoigner ici toute
notre gratitude.
- Milou, apparaît comme le type même du buronnier, représentant
de cette catégorie d'hommes qui passent une partie de leur vie dans
les montagnes, non seulement par nécessité économique,
mais aussi par vocation.
L'examen de ce tableau, qui comporte le nom, la fonction et l'origine
des buronniers, montre qu'il y a un changement dans la composition des
équipes, année après année; cette modification
est due à un changement de fonction, passage de roul à bédelier
ou à pastre, lié à une augmentation de salaire (la
mobilité des individus est aussi provoquée par l'émigration
définitive vers Paris).
En 1965, on a pu observer qu'à l'automne, époque où
les travaux requièrent moins de temps, des réunions hebdomadaires
avaient lieu le soir, réunions auxquelles participaient les hommes
de deux ou trois burons. Ces réunions étaient fréquentes
au Puech Crémat et la gastronomie y avaient une place de choix;
on y chantait en patois, on y discutait des dernières nouvelles,
on y évoquait des souvenirs... Emile Chassaly a réussi à
enregistrer certaines de ces soirées; en effet, il est vraisemblablement
le seul à avoir eu, dans un coin du buron, un magnétophone
en permanence durant l'estive... Profitant de son dynamisme et de son hospitalité,
les chercheurs du CNRS ont pu présenter dans son buron des séquences
filmées concernant la vie des buronniers et les techniques de fabrication
fromagère. Les agronomes et les techniciens de l'équipe
ont bénéficié de cet accueil pour y entreprendre des
recherches transformant ainsi la montagne de Puech Crémat en
montagne - laboratoire.
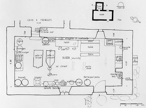
Transport
du lait : plusieurs cordes pour attacher la gerle; 2 barres pour transporter
la gerle; 1 char à timon pour transporter les gerles (non utilisé,
roues démontées).
Fabrication
du fromage : 1 bouteille de présure; 1 louche en fer blanc à
très long manche pour mélanger la présure; 1 brise-caillé,
tout en bois, dit "ménole"; 2 brasse-caillé, tout en bois,
ajustables sur la ménole, dit "attrassadou"; 2 puisettes à
petit lait, dites "pouzet", une en fer blanc, l'autre en aluminium; 1 selle
à presser la tome, en planches (le levier est doté d'un poids
de 33 kg); 1 couteau à tome à large lame pointue, en fer,
avec manche en bois; 1 vieux seau de métal pour récupération
du petit lait; 1 broyeur à tome, à cylindres munis de dents;
1 balayette à tome, en paille de riz (suspendue au montant de la
presse à tome); 1 coffre à sel en bois; 1 selle en planches
pour saler la tome; 1 bascule; 1 balance romaine; 1 pèse-bébé
pour peser le sel; 3 moules à fourme en fer étamé,
dont : 1 de 14 kg de tome, 1 de 25 kg et 1 de 44 kg; plusieurs étamines
à fourme (linge placé au fond du moule); 1 presse à
fourme en métal : "Crémier et Cie, constructeurs à
Aurillac", dotée de deux poids de 2,423 kg et de 3 poids de 1,380
kg; 1 claie à fourme.
Ustensiles
divers : 3 baquets à petit-lait, en bois, dit "badinioux", dont
1 neuf, fabriqué par L. Petit; 1 baquet à petit lait, en
plastique vert foncé, marqué Léopold; 1 écrémeuse
Alfa-Laval; plusieurs récipients à crème, en terre
émaillée brune; 1 baratte métallique Alfa-Laval, de
type centrifugeuse; 3 planchettes à beurre: 2 seaux en fer blanc;
1 seau en plastique.
A cet
équipement, il faut ajouter l'outillage nécessaire aux travaux
domestiques : scie et scie-égoïne, tenailles, marteaux, masse,
tournevis, vilebrequin, etc. ainsi que les ustensiles de l'équipement
domestique : cuisinière, réchaud à gaz butane, marmites,
poêle, casseroles, assiettes, verres, cuillères en bois, cuillères
à aligot, bouteilles, moulin à café, cafetière,
etc.
Mobilier
: le mobilier se compose, dans la salle commune, de deux tables, de deux
bancs et quatre tabourets, d'un petit coffre, d'un garde-manger, d'étagères
et d'un thermomètre-baromètre, un poste radio à transistor,
un magnétophone portatif autonome, utilisé pour entendre
des bandes de musique et de chanteurs régionaux, ou pour enregistrer
des chanteurs locaux. Cet équipement est localisé sur
les plans 4 et 5 représentant le plan de masse et le rez-de-chaussée
du buron de Puech Crémat Bas.
Le parcage a pour effet direct de fumer le pâturage. On
déplace le parc tous les trois ou quatre jours pour assurer une
fumure homogène à l'ensemble de la pâture. La
parcelle 1 a été fumée au cours d'un cycle de trois
ans et la fumure de la parcelle 2 commencée en 1966.
..
accueil | recherche
| plan du site | Verlac
| Aurelle |